T: 01228 792 299 |
 
 

7 Summergate Road, Annan, DG12 6EX

Offers Over £375,000

4
3
2
 
 
Home | Our Properties | 7 Summergate Road, Annan, DG12 6EX
 

Offers Over £375,000

4
3
2

Address:

7 Summergate Road
Annan
Annan
DG12 6EX

Features:

  • Four bedroom detached family home
  • Luxury family kitchen with open plan dining and two sets of double French doors to rear garden
  • Spacious living room with bay window and log burner
  • Principle bedroom with ensuite
  • Modern fixtures and fittings
  • Fully refurbished including re-wire, new heating system, new radiators and new plumbing
  • Large double garage with electric doors
  • Private, corner plot with electric gates for access to large gravelled driveway
  • Low maintenance gardens

Additional Information:

Property Type: House
Property Style: Detached
Tenure: Freehold
Council Tax Band: E

Downloads:

Brochure Home Report
C&D Rural

Get in Touch

Please contact us today if you have any questions

 

Full Details

An immaculately presented four bedroom detached family home in a highly desirable part of Annan. This exceptional home has been completely refurbished, including re-wiring, new heating system, new plumbing and radiators, as well as full modernisation internally and and now offers a unique opportunity to acquire a spacious family home in turnkey condition on a popular road in Annan. 7 Summergate Road also offers a large secluded plot, ample off street parking with secure electric gated access and a link detached double garage, all whilst being within walking distance of the town’s amenities.

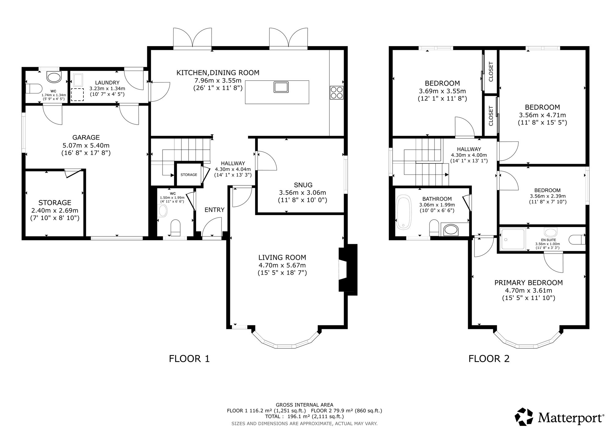
The Accommodation

Upon entering the property, a bright and welcoming hallway, laid with LVT herringbone style flooring throughout the entire ground floor, and gives access to all communal rooms including the stunning, modern fitted kitchen with granite worksurfaces and incorporating an integrated Indesit dual electric oven and grill, full height integrated fridge and freezer, induction hob, dishwasher sink and drainer. A centre island with built-in sink allows for a central prep and cleaning area whilst enhancing the flow and social aspect of the kitchen.

The living room is the perfect size for entertaining, boasting a beautiful five section bay window and log burning stove set on a stone hearth. Adjacent to the main living room is a smaller reception or snug room which would also lend itself as an excellent office/studio space. The ground floor is completed by a downstairs WC and a useful utility room with plumbing for a washing machine and tumble dryer. From the utility room a back door allows easy access to the rear garden and patio and an internal door into the double garage. The garage has been adapted for business use with a stud wall erected to create some additional storage but this can be reversed easily. The garage benefits from two electric doors, insulation and at the rear there is a WC room with hand basin.

The first floor offers four double bedrooms with the principal bedroom suite featuring an ensuite shower-room with double walk in mains fed shower, led touch screen mirror above hand wash basin with vanity unit and WC. There are a further 3 good size bedrooms, one of which is being utilised as a dressing room but would easily fit a double bed. The family bathroom has been finished beautifully, boasting a deep tub, freestanding bath, hand wash basin on a granite surface with vanity unit beneath and led touch screen mirror above and WC. Access to the loft is through a hatch on the landing, which is boarded and well insulated.

Externally the property sits in a large, private corner plot with electric gated access, cctv and high walled boundary. The plot is principally laid with loose stone creating an extensive driveway however, there is scope to bring back sections of garden at the side of the house if desired. At the rear of the property, there is a large outdoor patio and lawn laid with astroturf for low maintenance.

Location Summary

The property is located in a popular area of the charming town of Annan in Dumfries and Galloway. Annan is known for its welcoming community, rich history, and scenic surroundings, offering a blend of rural beauty and convenient town living. For commuters, Annan railway station is only half a mile away, providing regular services to both Carlisle and Glasgow, making it ideal for those who travel for work or leisure. The nearby A75 provides easy road access to the M74, connecting to major cities across Scotland and Northern England.

The town itself boasts a variety of amenities, including supermarkets, independent shops, cafes, restaurants, doctors and dentists. For families, the property is well-served by excellent local schools, such as Elmvale and Newington Primary School as well as Annan Academy, both offering high-quality education. Residents can also enjoy a range of outdoor activities, with the beautiful Solway Coast just a short drive away.

GENERAL REMARKS & STIPULATIONS

Tenure and Possession: The Heritable (Scottish equivalent of Freehold) title is offered for sale with vacant possession upon completion.

Matters of Title: The property is sold subject to all existing servitude rights, burdens, reservations and wayleaves, including rights of access and rights of way whether contained in the Title Deeds or informally constituted and whether referred to in the General Remarks and Stipulations or not. The Purchaser(s) will be held to have satisfied themselves as to the nature of such servitude rights and others.

Fixtures and Fittings: All standard fixtures and fittings are to be included in the sale.

EPC Rating: D

Broadband: Fibre broadband is available and there is good mobile coverage.

Services: 7 Summergate Road is serviced by mains water supply, mains electricity, mains drainage and gas central heating.

Viewings: Strictly by appointment through the sole selling agents, C&D Rural. Tel 01228 792299.

Offers: Offers should be submitted in Scottish Legal Form to the selling agents. The owner reserves the right to sell without imposing a closing date and will not be bound to accept the highest, or indeed any, offer. All genuinely interested parties are advised to instruct their solicitor to note their interest with the Selling Agents immediately after inspection.

Money Laundering Obligations: In accordance with the Money Laundering Regulations 2017 the selling agents are required to verify the identity of the purchaser at the time an offer is accepted. All offers to purchase a property on a cash basis or subject to mortgage require evidence of source of funds.

Local Authority: Dumfries & Galloway Council, English Street, Dumfries, DG1 2DE. Tel: 03033 333000. The house is in Council Tax Band E .

Website and Social Media: Further details of this property as well as all others offered by C&D Rural are available to view on our website www.cdrural.co.uk.For updates and the latest properties like us on facebook.com/cdrural and Instagram on @cdrural.

Referrals: C&D Rural work with preferred providers for the delivery of certain services necessary for a house sale or purchase. Our providers price their products competitively, however you are under no obligation to use their services and may wish to compare them against other providers. Should you choose to utilise them C&D Rural will receive a referral fee: Fisher Financial Associates– arrangement of mortgage & other products/insurances; C&D Rural will receive a referral fee of £50 per mortgage referral. Figures quoted are inclusive of VAT.

 

Floorplans

Virtual Tour

 

Location

This website uses cookies
This site uses cookies to enhance your browsing experience. We use necessary cookies to make sure that our website works. We’d also like to set analytics cookies that help us make improvements by measuring how you use the site. By clicking “Allow All”, you agree to the storing of cookies on your device to enhance site navigation, analyse site usage, and assist in our marketing efforts.
These cookies are required for basic functionalities such as accessing secure areas of the website, remembering previous actions and facilitating the proper display of the website. Necessary cookies are often exempt from requiring user consent as they do not collect personal data and are crucial for the website to perform its core functions.
A “preferences” cookie is used to remember user preferences and settings on a website. These cookies enhance the user experience by allowing the website to remember choices such as language preferences, font size, layout customization, and other similar settings. Preference cookies are not strictly necessary for the basic functioning of the website but contribute to a more personalised and convenient browsing experience for users.
A “statistics” cookie typically refers to cookies that are used to collect anonymous data about how visitors interact with a website. These cookies help website owners understand how users navigate their site, which pages are most frequently visited, how long users spend on each page, and similar metrics. The data collected by statistics cookies is aggregated and anonymized, meaning it does not contain personally identifiable information (PII).
Marketing cookies are used to track user behaviour across websites, allowing advertisers to deliver targeted advertisements based on the user’s interests and preferences. These cookies collect data such as browsing history and interactions with ads to create user profiles. While essential for effective online advertising, obtaining user consent is crucial to comply with privacy regulations.