T: 01228 792 299 |
 
 

Plots A & B, Pennine Heights, Warcop, Appleby-in-Westmorland, CA16 6PL

Guide Price £450,000

4
2
2
 
 
Home | Our Properties | Plots A & B, Pennine Heights, Warcop, Appleby-in-Westmorland, CA16 6PL
 

Guide Price £450,000

4
2
2

Address:

Plots A & B, Pennine Heights
Warcop
Appleby-in-Westmorland
CA16 6PL

Features:

  • New build opportunity in a popular commuter village
  • Two plots, with one part constructed, and services close by
  • For sale as a Whole but may split by negotiation
  • Large kitchen/diner/sun room
  • Four bedrooms & Two Reception Rooms
  • Good sized grounds and off road parking
  • Located at the entrance of a new build development site

Additional Information:

Property Type: House
Property Style: Detached
Tenure: Freehold

Downloads:

Brochure
C&D Rural

Get in Touch

Please contact us today if you have any questions

 

Full Details

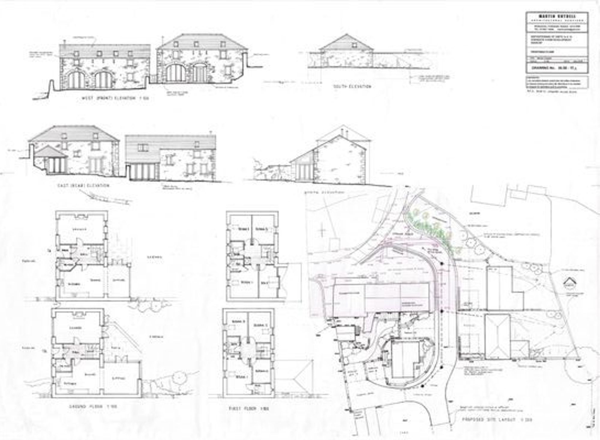
C&D Rural are proud to market two building plots (A & B). They have full planning consent (planning reference 21/0596) for the construction of a four bedroom detached house on each. Planning consent has been secured indefinitely as the house on plot B is partially built. Available as a whole for ease of construction, but consideration will be given to splitting the sites by negotiation..

Located within a former walled garden, the properties are to be stone faced and stone from the original farm buildings, which were demolished to make way for these homes, will be made available to the buyer, including the original arches and quoin stones.

The Accommodation

The two properties have a similar layout, with ground floor accommodation comprising a kitchen/diner and living space adjoining; separate lounge area and WC. The first floor comprises of four double bedrooms and a family bathroom. The master bedroom has an en-suite provided for. Parking for two cars at the front and a private garden to the rear.

Location

Warcop is a well-established rural village set within the picturesque Eden Valley, surrounded by open countryside and scenic fell views. The village offers a peaceful environment while remaining conveniently connected to nearby market towns. Appleby-in-Westmorland is just a short drive away and provides a range of local amenities including shops, schools, cafés, and healthcare services.

The area benefits from excellent transport links, with easy access to the A66 connecting to Penrith, Kendal, and the Lake District National Park. Warcop railway station, located on the Settle–Carlisle line, offers direct services to Carlisle and Leeds, making the village suitable for both commuters and those seeking a rural lifestyle.

Known for its strong community feel and attractive surroundings, Warcop is ideally placed for outdoor pursuits such as walking, cycling, and countryside exploration, while offering a quiet and desirable setting for residential living.

What3Words: ///gather.plotted.responses

GENERAL REMARKS & STIPULATIONS

Tenure and Possession: The Freehold title is offered for sale with vacant possession upon completion.

Matters of Title: The property is sold subject to all existing easements, burdens, reservations and wayleaves, including rights of access and rights of way whether contained in the Title Deeds or informally constituted and whether referred to in the General Remarks and Stipulations or not. The Purchaser(s) will be held to have satisfied themselves as to the nature of such matters. The access road is owned by the Vendor and full access rights will be granted to the plots.

Fixtures and Fittings: All standard fixtures and fittings are to be included in the sale as far as can be agreed.

EPC Rating: N/A

Services: Plot B is served by mains water and electricity and mains drainage. Plot A has no services connected but they are available close by and the vendor will grant the necessary wayleaves. Heating is to be by air source heat pump.

Viewings: Strictly by appointment through the sole selling agents, C&D Rural. Tel 01228 792299

Offers: Offers should be submitted to the selling agents. The owner reserves the right to sell without imposing a closing date and will not be bound to accept the highest, or indeed any, offer. All genuinely interested parties are advised to note their interest with the selling agents.

Money Laundering Obligations: In accordance with the Money Laundering Regulations 2017 the selling agents are required to verify the identity of the purchaser at the time an offer is accepted.

Local Authority: Westmorland & Furness Council, Voreda House, Portland Place, Penrith, CA11 7BF.

Website and Social Media: Further details of this property as well as all others offered by C&D Rural are available to view on our website www.cdrural.co.uk. For updates and the latest properties like us on facebook.com/cdrural and Instagram on @cdrural.

Referrals: C&D Rural work with preferred providers for the delivery of certain services necessary for a house sale or purchase. Our providers price their products competitively, however you are under no obligation to use their services and may wish to compare them against other providers. Should you choose to utilise them C&D Rural will receive a referral fee: PIA Financial Solutions – arrangement of mortgage & other products/insurances; C&D Rural will receive a referral fee of £50 per mortgage referral. Figures quoted are inclusive of VAT.

 

Floorplans

 

Location

This website uses cookies
This site uses cookies to enhance your browsing experience. We use necessary cookies to make sure that our website works. We’d also like to set analytics cookies that help us make improvements by measuring how you use the site. By clicking “Allow All”, you agree to the storing of cookies on your device to enhance site navigation, analyse site usage, and assist in our marketing efforts.
These cookies are required for basic functionalities such as accessing secure areas of the website, remembering previous actions and facilitating the proper display of the website. Necessary cookies are often exempt from requiring user consent as they do not collect personal data and are crucial for the website to perform its core functions.
A “preferences” cookie is used to remember user preferences and settings on a website. These cookies enhance the user experience by allowing the website to remember choices such as language preferences, font size, layout customization, and other similar settings. Preference cookies are not strictly necessary for the basic functioning of the website but contribute to a more personalised and convenient browsing experience for users.
A “statistics” cookie typically refers to cookies that are used to collect anonymous data about how visitors interact with a website. These cookies help website owners understand how users navigate their site, which pages are most frequently visited, how long users spend on each page, and similar metrics. The data collected by statistics cookies is aggregated and anonymized, meaning it does not contain personally identifiable information (PII).
Marketing cookies are used to track user behaviour across websites, allowing advertisers to deliver targeted advertisements based on the user’s interests and preferences. These cookies collect data such as browsing history and interactions with ads to create user profiles. While essential for effective online advertising, obtaining user consent is crucial to comply with privacy regulations.