T: 01228 792 299 |
 
 

Joiners Cottage, Moorhouse, Carlisle, CA5 6EY

Guide Price £375,000

4
2
2
 
 
Home | Our Properties | Joiners Cottage, Moorhouse, Carlisle, CA5 6EY
 

Guide Price £375,000

4
2
2

Address:

Joiners Cottage
Moorhouse
Carlisle
Carlisle
CA5 6EY

Features:

  • Fully renovated character cottage
  • Four generous double bedrooms
  • Stylish open-plan kitchen and living spaces
  • Adjoining barn with excellent potential
  • Off-road parking for multiple vehicles
  • Popular village location with excellent transport links

Additional Information:

Property Type: House
Property Style: Semi Detached
Tenure: Freehold
Council Tax Band: C

Downloads:

C&D Rural

Get in Touch

Please contact us today if you have any questions

 

Full Details

Joiners Cottage is a beautifully presented character home that has undergone a comprehensive renovation by the current owners. The works carried out include full rewiring, a new heating system and plumbing, new kitchen and bathrooms, along with tasteful redecoration throughout. The property also benefits from new insulation and plasterwork, including additional insulation to the external walls, resulting in a home that combines period charm with modern comfort and efficiency.

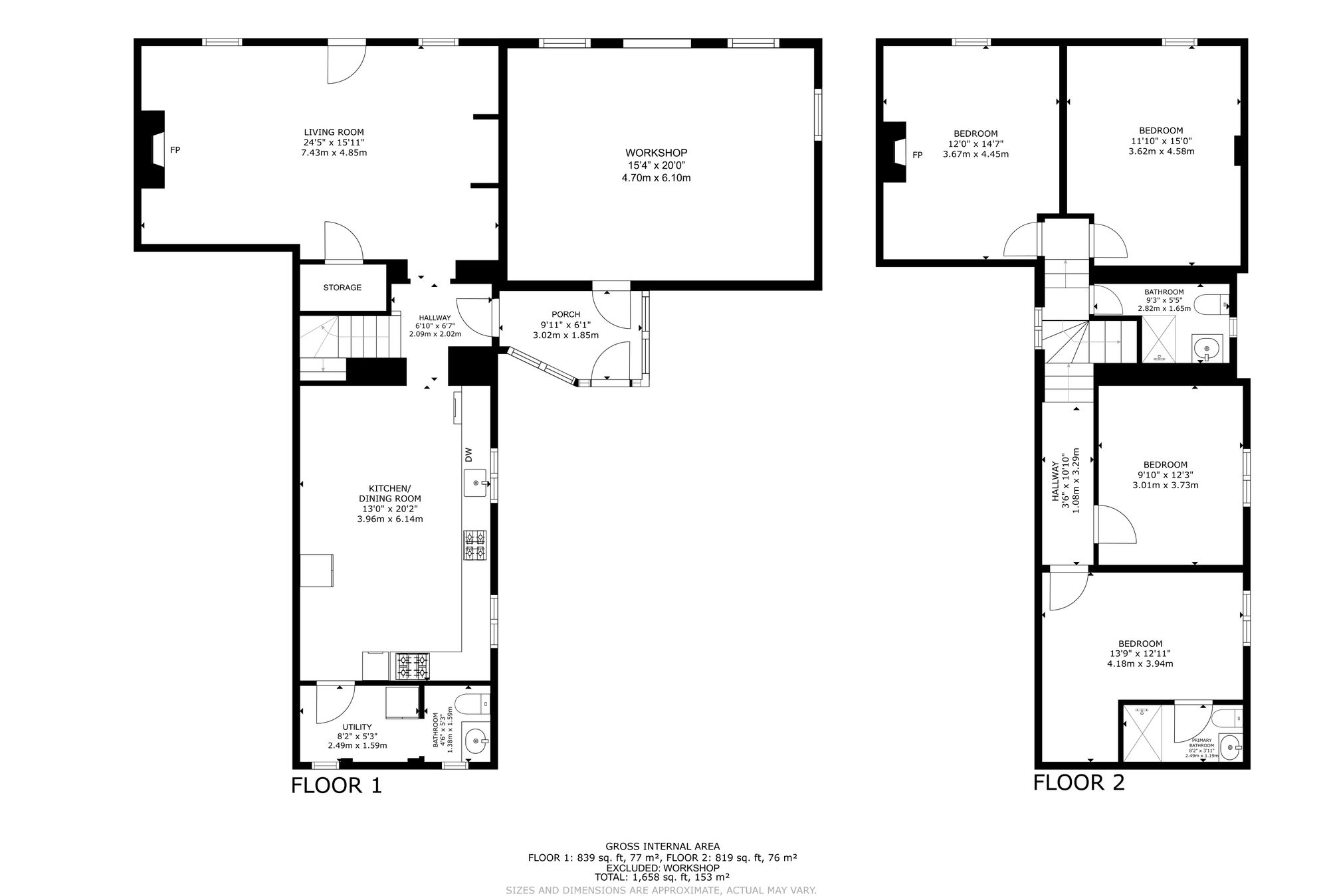
The front door opens directly into the main living room, a generous and inviting space that blends contemporary finishes with traditional features. Originally two smaller rooms, this area has been opened up to create a more sociable layout. A log-burning stove sits within an attractive stone fireplace with rustic brick surround, forming a striking focal point, while wood panelling to the alcoves enhances the cottage feel. A large under-stairs cupboard provides excellent practical storage. From here, a ground floor hallway leads through to the remainder of the accommodation, with attractive limestone flag flooring extending throughout the rest of the ground floor.

The kitchen is a large open-plan kitchen and dining space with a warm country farmhouse aesthetic. Shaker-style units are paired with solid wood worktops and a large Belfast sink, creating a timeless and practical environment. High-quality integrated NEFF appliances include an oven and microwave, with space provided for a dishwasher and washing machine. This is an excellent family space, equally suited to everyday living and entertaining. A utility room sits off the kitchen, offering further storage and space for an additional fridge, while also housing a convenient downstairs WC. The rear porch is accessed from the ground floor hallway and is the entrance most commonly used by the current owners, providing a practical space for coats and shoes and offering direct access to both the garden and the driveway.

To the first floor, the property offers four generous double bedrooms and a family bathroom. The principal bedroom is positioned at the front of the house and benefits from a bright south-facing aspect, with a beautiful original fireplace providing a charming focal point. Across the hallway, the second bedroom is similar in size and is currently used as an additional sitting room, featuring exposed brickwork to the chimney breast and a characterful exposed beam. To the rear are two further double bedrooms, one presently arranged as a home office and the other ideal for guests, benefitting from its own ensuite shower room.

Externally, the garden offers a sheltered patio area ideal for alfresco dining and entertaining, with a further small area to the side of the property housing a garden shed and providing additional useful outdoor storage. A particularly valuable feature is the adjoining barn, which can be accessed either internally from the rear porch or externally from the driveway. This is a substantial and highly versatile space, offering excellent potential for conversion (subject to any necessary consents) into an annex, additional living accommodation, home office, workshop or simply as generous storage. The driveway itself provides ample off-road parking, comfortably accommodating at least three vehicles.

Joiners Cottage is located in the popular village of Moorhouse, just outside Carlisle, offering the ideal balance between rural living and excellent connectivity. The village enjoys a strong community feel and is well served by a highly regarded local pub, with further excellent village pubs and eateries found in neighbouring villages. Carlisle city centre is within easy reach, providing a full range of shops, leisure facilities and professional services. The property is also conveniently positioned for access to the M6 motorway, making travel north and south straightforward, while Carlisle’s mainline railway station offers direct connections to London, Edinburgh, Glasgow and Manchester.

Families are well catered for with a good selection of respected primary and secondary schools locally. For lifestyle and recreation, the property is ideally placed for easy access to the Lake District National Park and the Solway Coast Area of Outstanding Natural Beauty, both offering outstanding scenery and a wealth of outdoor pursuits.

GENERAL REMARKS & STIPULATIONS

Tenure and Possession: The Freehold title is offered for sale with vacant possession upon completion.

Matters of Title: The property is sold subject to all existing easements, burdens, reservations and wayleaves, including rights of access and rights of way whether contained in the Title Deeds or informally constituted and whether referred to in the General Remarks and Stipulations or not. The Purchaser(s) will be held to have satisfied themselves as to the nature of such matters.

Fixtures and Fittings: All standard fixtures and fittings are to be included in the sale.

EPC Rating: D

Services: Joiners Cottage is served by Mains water, electricity and sewage. Heating is supplied via LPG (tank within boundary). Mobile phone signal is varied. The broadband is provided by SKY with average speeds of 53MBPS.

Viewings: Strictly by appointment through the sole selling agents, C&D Rural. Tel 01228 792299

Offers: Offers should be submitted to the selling agents. The owner reserves the right to sell without imposing a closing date and will not be bound to accept the highest, or indeed, any offer. All genuinely interested parties are advised to note their interest with the selling agents.

Money Laundering Obligations: In accordance with the Money Laundering Regulations 2017 the selling agents are required to verify the identity of the purchaser at the time an offer is accepted.

Local Authority: Cumberland Council, 111 Botchergate, Carlisle CA1 1RZ. The house is in Council Tax Band C.

Solicitors: TBC

Website and Social Media: Further details of this property as well as all others offered by C&D Rural are available to view on our website www.cdrural.co.uk.For updates and the latest properties like us on facebook.com/cdrural and Instagram on @cdrural.

Referrals: C&D Rural work with preferred providers for the delivery of certain services necessary for a house sale or purchase. Our providers price their products competitively, however you are under no obligation to use their services and may wish to compare them against other providers. Should you choose to utilise them C&D Rural will receive a referral fee: PIA Financial Solutions – arrangement of mortgage & other products/insurances; C&D Rural will receive a referral fee of £50 per mortgage referral. Figures quoted are inclusive of VAT

 

Floorplans

Virtual Tour

 

Location

This website uses cookies
This site uses cookies to enhance your browsing experience. We use necessary cookies to make sure that our website works. We’d also like to set analytics cookies that help us make improvements by measuring how you use the site. By clicking “Allow All”, you agree to the storing of cookies on your device to enhance site navigation, analyse site usage, and assist in our marketing efforts.
These cookies are required for basic functionalities such as accessing secure areas of the website, remembering previous actions and facilitating the proper display of the website. Necessary cookies are often exempt from requiring user consent as they do not collect personal data and are crucial for the website to perform its core functions.
A “preferences” cookie is used to remember user preferences and settings on a website. These cookies enhance the user experience by allowing the website to remember choices such as language preferences, font size, layout customization, and other similar settings. Preference cookies are not strictly necessary for the basic functioning of the website but contribute to a more personalised and convenient browsing experience for users.
A “statistics” cookie typically refers to cookies that are used to collect anonymous data about how visitors interact with a website. These cookies help website owners understand how users navigate their site, which pages are most frequently visited, how long users spend on each page, and similar metrics. The data collected by statistics cookies is aggregated and anonymized, meaning it does not contain personally identifiable information (PII).
Marketing cookies are used to track user behaviour across websites, allowing advertisers to deliver targeted advertisements based on the user’s interests and preferences. These cookies collect data such as browsing history and interactions with ads to create user profiles. While essential for effective online advertising, obtaining user consent is crucial to comply with privacy regulations.