Westray, Abbeytown, Wigton, CA7 4SZ
Guide Price £180,000
Guide Price £180,000
Address:
Abbeytown
Wigton
Wigton
CA7 4SZ
Features:
- Refurbished three bedroom semi-detached house
- Rural location with good views
- Modern fitted kitchen
- Living room and family room
- Off road parking for 2 cars
- Good sized, well maintained, grounds
Additional Information:
Downloads:
BrochureFull Details
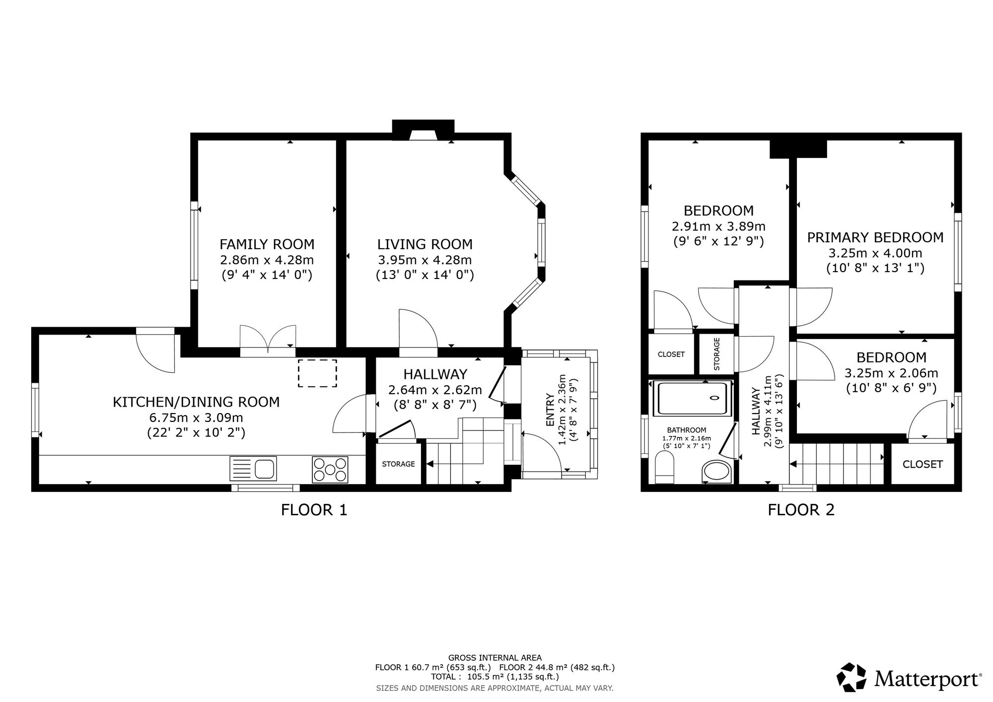
Westray is a spacious three bedroom, extended, semi-detached family home situated approximately 6 miles from Wigton. Having recently been refurbished and decorated, the property would suit a range of buyers including first or second time buyers, buyers looking to downsize or buyers searching for an opportunity to escape to the countryside.
The Accommodation
The front door opens into a useful and spacious porch with a tiled floor,which opens into a corridor with stairs to the first floor and a below stairs cupboard. The front living room is bright and airy thanks to the bay window and it has an electric fire in a surround. The kitchen was renewed earlier this year and is complete with a range of modern wall and floor cabinets with matching worktops and tiled splash-backs, space for a washing machine and a Belling electric range cooker with overhead extractor hood. The oil-fired combi boiler is also located in the kitchen and is integrated. Glazed doors from the kitchen open into a family room, which could serve as a dining room, home office or could be combined with the front room to make a single large living room.
Upstairs there are three bedrooms (two double and one single, which has a cupboard. The family bathroom is fully tiled, complete with WC, wash basin and walk-in shower,with shower boarded walls.
Externally
Westray is located in open countryside with good views. The adjoining property is well maintained. There is paved off road parking and lawn to the front, with further lawn to the side and a flagged area to the rear. The access road is private and shared by the properties it serves including the farm it leads to. The property is constructed of rendered brick with a slate covered roof which has been renewed.
Location Summary
The property is located close to Abbeytown, which has a small convenience shop with post office, public house and primary school. The nearby town of Wigton (about 6 miles away) offers a wider range of amenities including supermarkets, secondary school and a train station.
What 3 words
///mailboxes.richest.fewest
GENERAL REMARKS & STIPULATIONS
Tenure and Possession: The Freehold title is offered for sale with vacant possession upon completion.
Matters of Title: The property is sold subject to all existing easements, burdens, reservations and wayleaves, including rights of access and rights of way whether contained in the Title Deeds or informally constituted and whether referred to in the General Remarks and Stipulations or not. The Purchaser(s) will be held to have satisfied themselves as to the nature of such matters.
Fixtures and Fittings: All standard fixtures and fittings are to be included in the sale.
EPC Rating: E
Services: Westray is served by mains water (metered from the farm at a cost of around £120 p.a.), mains electricity and mains drainage. Heating is provided by an oil fired combi central heating and hot water system. Broadband is connected and mobile signal is good. The property was rewired earlier this year.
Viewings: Strictly by appointment through the sole selling agents, C&D Rural. Tel 01228 792299
Offers: Offers should be submitted to the selling agents. The owner reserves the right to sell without imposing a closing date and will not be bound to accept the highest, or indeed any, offer. All genuinely interested parties are advised to note their interest with the selling agents.
Money Laundering Obligations: In accordance with the Money Laundering Regulations 2017 the selling agents are required to verify the identity of the purchaser at the time an offer is accepted.
Local Authority: Cumberland Council, 111 Botchergate, Carlisle CA1 1RZ. The house is in Council Tax Band B.
Website and Social Media: Further details of this property as well as all others offered by C&D Rural are available to view on our website www.cdrural.co.uk. For updates and the latest properties like us on facebook.com/cdrural and Instagram on @cdrural.
Referrals: C&D Rural work with preferred providers for the delivery of certain services necessary for a house sale or purchase. Our providers price their products competitively, however you are under no obligation to use their services and may wish to compare them against other providers. Should you choose to utilise them C&D Rural will receive a referral fee: Fisher Financial Associates – arrangement of mortgage & other products/insurances; C&D Rural will receive a referral fee of £50 per mortgage referral. Figures quoted are inclusive of VAT.
 
								 
				 
				 
				 
				 
				