T: 01228 792 299 |
 
 

Broat View Hollee, Kirkpatrick Fleming, Lockerbie, DG11 3NF

Offers Over £395,000

5
3
3
 
 
Home | Our Properties | Broat View Hollee, Kirkpatrick Fleming, Lockerbie, DG11 3NF
 

Offers Over £395,000

5
3
3

Address:

Broat View Hollee
Kirkpatrick Fleming
Lockerbie
Lockerbie
DG11 3NF

Features:

  • Superb detached family home
  • Sitting room with wood burning stove
  • Fantastic kitchen/living/dining room
  • Sun room and outdoor dining area
  • 5 double bedrooms (one en-suite)
  • Office, utility room, family bathroom and additional shower room
  • Landscaped gardens and generous driveway
  • Integral garage
  • Attractive open views

Additional Information:

Property Type: House
Property Style: Detached
Tenure: Freehold
Council Tax Band: F
Heating System: Oil
Heating System: Oil

Downloads:

Brochure Home Report
C&D Rural

Get in Touch

Please contact us today if you have any questions

 

Full Details

Broat View is a superb modern detached family home, with spacious accommodation over two levels.  The property sits in a generous plot and is located on the edge of the hamlet of Hollee, bordering open countryside. The property is within easy reach of local amenities, schooling and major road and rail networks.

The Accommodation

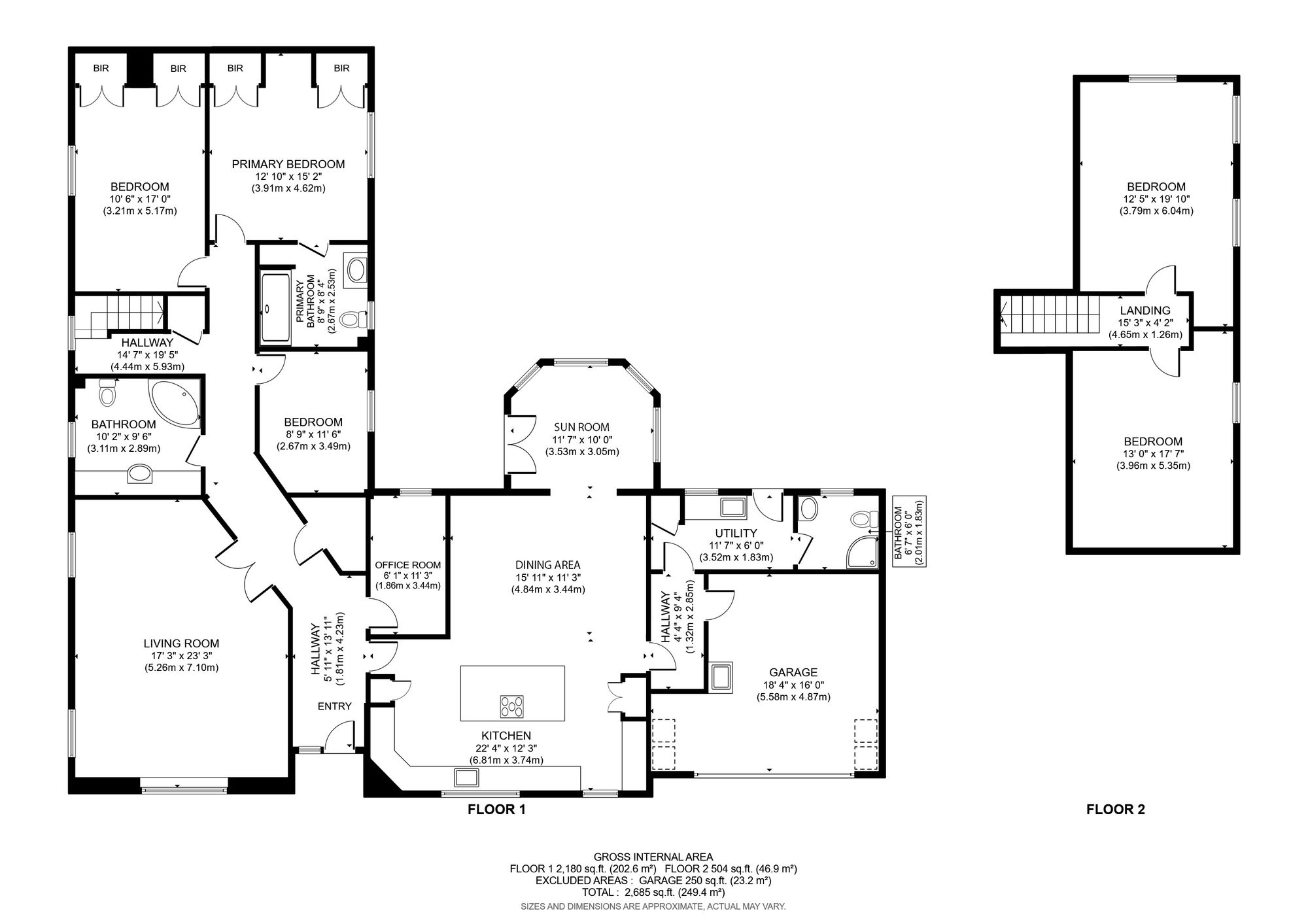
A part glazed front door opens into a generous reception hall, which offers a deep storage cupboard and a mixture of wood effect laminate flooring and carpet.  The sitting room is located to the front of the property and is an excellent size, enjoying a dual aspect and a wood burning stove set into a sandstone surround. The kitchen is the real heart of the home and features a fantastic range of solid oak, white cabinets with granite worksurfaces.  There is a central island with breakfast bar and an integrated fridge and dishwasher.  The Stoves range cooker may be available by separate negotiation.  There is ceramic tiling to the floor, ample room for living furniture, and open views to the front. A cosy woodburning stove sits in the corner of the room. The kitchen is open plan to the dining area/sun room, which is glazed on three elevations and enjoys direct access, via double doors, to the patio and garden at the rear.  

From the kitchen an inner passage leads to the integral garage, utility and a shower room.  The garage has power, light and an electronically operated roller door.  The utility room offers fitted storage, granite worksurfaces and a stainless steel sink, along with direct access to the rear garden.  The shower room is directly off the utility room and comprises a corner shower cubicle, WC and wash hand basin. There is a useful office accessed from the hall, which has fitted desks, shelving and storage units.  

Three of the five bedrooms are located on the ground floor. The principal bedroom is well-proportioned with two sets of fitted wardrobes and a window to the rear. There is an en-suite shower room comprising large walk-in shower, WC, wash hand basin set into a vanity unit, recessed shelving and a heated towel rail.  The other ground floor bedrooms are both double in size, and one boasts fitted wardrobes.  The family bathroom is on the ground floor and comprises a corner bath with jets, WC and wash hand basin that is set into a large vanity unit with storage below. Carpeted stairs rise to the upper floor, where two large double bedrooms can be found.  

Outside

The property is set within a generous plot and is fully enclosed, by sandstone walling and/or timber fencing.  Wrought iron double gates open into a spacious gravelled driveway, offering parking for many vehicles. The lawned areas of the garden are laid to the front, side and rear of the house, and there are areas of paved patio and pathways.  In addition, there is a feature circular sandstone seating area, ideal for entertaining.  

Location Summary

Broat View is located on the edge of the small hamlet of Hollee, close to Kirkpatrick Fleming. Both Lockerbie and Gretna are within easy reach providing everyday amenities including a range of shops, banks, cafes, restaurants and public houses. For a wider range of facilities, both Dumfries and Carlisle are close by. There is a primary school in Kirkpatrick Fleming, with a variety of other options around the area. There are further schools available in Dumfries and also Carlisle. For the commuter, there are excellent road links for access to Glasgow to the north and Carlisle to the south. The M6 and the A74(M) are within easy reach for onward travel north and south. There are railway stations at Annan and Lockerbie with trains to Glasgow and Carlisle. Main line rail services from Carlisle provide fast and frequent services to London in the south, together with cross country services to the east. Newcastle International Airport is around 1½ hours away, with Edinburgh and Glasgow airports also easily reached.

What 3 words

///sobered.supposed.scanty

General Remarks & Stipulations

Tenure and Possession: The Heritable (Scottish equivalent of Freehold) title is offered for sale with vacant possession upon completion.

Matters of Title: The property is sold subject to all existing servitude rights, burdens, reservations and wayleaves, including rights of access and rights of way whether contained in the Title Deeds or informally constituted and whether referred to in the General Remarks and Stipulations or not. The Purchaser(s) will be held to have satisfied themselves as to the nature of such servitude rights and others.

Fixtures and Fittings: All standard fixtures and fittings are to be included in the sale.

EPC Rating: D

Broadband: Fibre broadband is connected and there is good mobile coverage available.

Services: Broat View is serviced by mains water supply, mains electricity, septic tank sewerage and oil fired central heating.

Viewings: Strictly by appointment through the sole selling agents, C&D Rural. Tel 01228 792299.

Offers: Offers should be submitted in Scottish Legal Form to the selling agents. The owner reserves the right to sell without imposing a closing date and will not be bound to accept the highest, or indeed any, offer. All genuinely interested parties are advised to instruct their solicitor to note their interest with the Selling Agents immediately after inspection.

Money Laundering Obligations: In accordance with the Money Laundering Regulations 2017 the selling agents are required to verify the identity of the purchaser at the time an offer is accepted. All offers to purchase a property on a cash basis or subject to mortgage require evidence of source of funds.

Local Authority: Dumfries & Galloway Council, English Street, Dumfries, DG1 2DE. Tel: 03033 333000. The house is in Council Tax Band F.

Website and Social Media: Further details of this property as well as all others offered by C&D Rural are available to view on our website www.cdrural.co.uk.For updates and the latest properties like us on facebook.com/cdrural and Instagram on @cdrural.

Referrals: C&D Rural work with preferred providers for the delivery of certain services necessary for a house sale or purchase. Our providers price their products competitively, however you are under no obligation to use their services and may wish to compare them against other providers. Should you choose to utilise them C&D Rural will receive a referral fee: Fisher Financial Associates– arrangement of mortgage & other products/insurances; C&D Rural will receive a referral fee of £50 per mortgage referral. Figures quoted are inclusive of VAT.



 

Floorplans

 

Location

This website uses cookies
This site uses cookies to enhance your browsing experience. We use necessary cookies to make sure that our website works. We’d also like to set analytics cookies that help us make improvements by measuring how you use the site. By clicking “Allow All”, you agree to the storing of cookies on your device to enhance site navigation, analyse site usage, and assist in our marketing efforts.
These cookies are required for basic functionalities such as accessing secure areas of the website, remembering previous actions and facilitating the proper display of the website. Necessary cookies are often exempt from requiring user consent as they do not collect personal data and are crucial for the website to perform its core functions.
A “preferences” cookie is used to remember user preferences and settings on a website. These cookies enhance the user experience by allowing the website to remember choices such as language preferences, font size, layout customization, and other similar settings. Preference cookies are not strictly necessary for the basic functioning of the website but contribute to a more personalised and convenient browsing experience for users.
A “statistics” cookie typically refers to cookies that are used to collect anonymous data about how visitors interact with a website. These cookies help website owners understand how users navigate their site, which pages are most frequently visited, how long users spend on each page, and similar metrics. The data collected by statistics cookies is aggregated and anonymized, meaning it does not contain personally identifiable information (PII).
Marketing cookies are used to track user behaviour across websites, allowing advertisers to deliver targeted advertisements based on the user’s interests and preferences. These cookies collect data such as browsing history and interactions with ads to create user profiles. While essential for effective online advertising, obtaining user consent is crucial to comply with privacy regulations.