Request a Valuation
Request a Valuation
 
View all images (10)
Brochure
Virtual Tour
Floorplans
Location
Share
Home - Find Your Property - Oakfield, Dalskairth
For Sale
 

Oakfield, Dalskairth, Dumfries, DG2

Offers Over

£175,000

Features

  • Development land with planning permission for equestrian holiday accommodation business
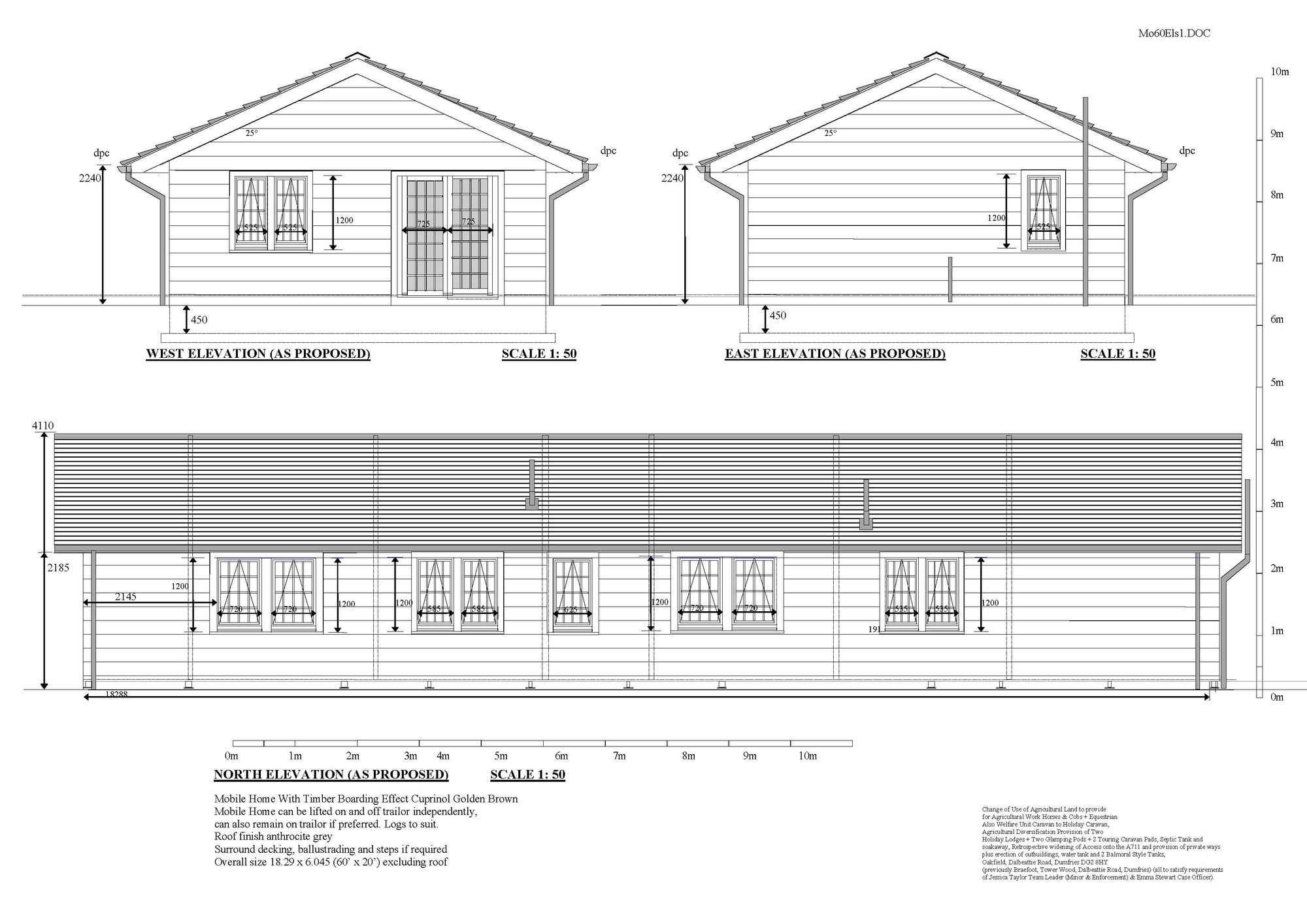
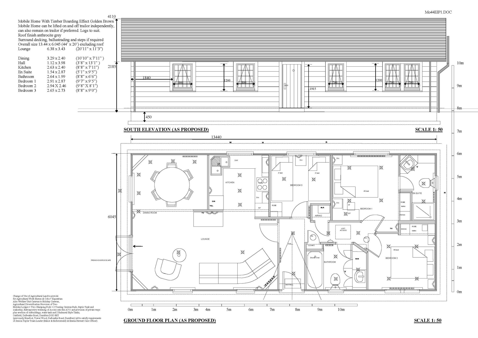
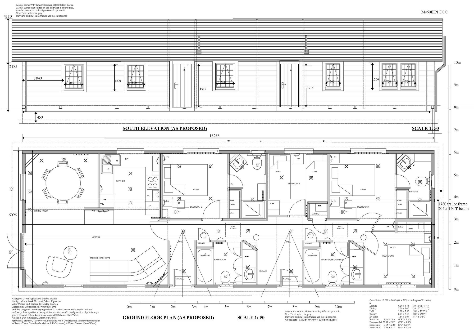
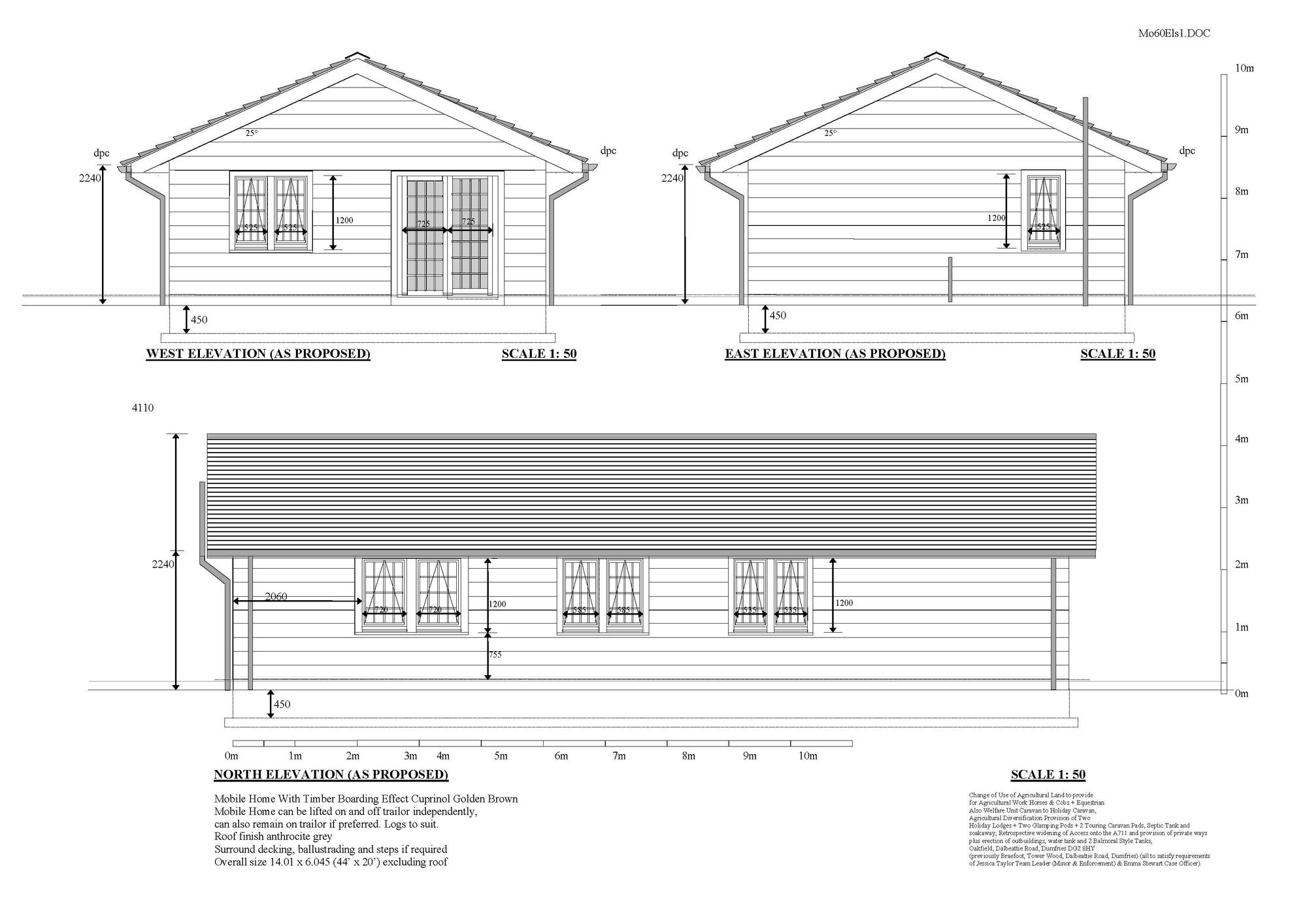
  • Planning permission for the erection of two holiday lodges, two glamping pods and formation of bases for siting of two touring caravans
  • 10 acres of agricultural land
  • Steel portal frame agricultural shed with stables already on site
  • Static caravan already on site to be utilised as a reception/welfare unit
  • Planning reference: 21/1518/FUL
  • Situated on the outskirts of Dumfries
  • Potential to transform into profitable equestrian centre

Full Details

Oakfield offers an excellent development opportunity to transform 10 acres of well situated agricultural land into a thriving and profitable equestrian holiday accommodation business. The site currently has planning permission for the erection of two holiday lodges, two glamping pods, two caravan pitches and change of use of the static caravan to a reception/welfare unit. The site is situated only a few miles from Dumfries Town Centre.

The Land

The land is available as a whole. With roadside access, the land is stock proof and generally well fenced throughout. Planning was granted for a steel frame agricultural shed, with corrugated steel sheet walls and roof. The shed has been constructed and is currently being used as stables. There is a static caravan on the land which has planning permission to be used as an office/welfare unit. The caravan is serviced by LPG gas. The solar panels are not included in the sale.

Planning

There is planning consent for the erection of an agricultural shed (Ref: 21/1148/DPA). Furthermore, the current owner envisioned transforming the site into an equestrian holiday centre and planning permission was granted in January 2025 for it’s change of use with Dumfries and Galloway Council. More details can be found on their website and using Reference: 21/1518/FUL.

More details of the planning is available on request.

Location Summary

The area offers wonderful sporting and recreational opportunities and is well known for its mild climate and long growing season. There are numerous lochs and rivers locally providing fishing as well as salmon and sea trout fishing on some of Dumfriesshire’s larger rivers such as the Nith and Annan.The area is perfect for cycling and mountain biking and is an idyllic location for walkers with numerous coastal walks, and hill walking in the nearby Galloway Hills and Forest. The property is well placed for access to Dumfries town centre and several facilities to include schools, shops, restaurants and sporting facilities. The railway station is a short distance away and both Glasgow and Edinburgh are easily accessible by car and train. Dumfries and Galloway Royal Infirmary and the Crichton Campus are a short drive away.

What 3 Words

///varieties.whoever.backswing

General Remarks & Stipulations

Tenure and Possession: The Heritable (Scottish equivalent of Freehold) title is offered for sale with vacant possession upon completion.

Matters of Title: The property is sold subject to all existing servitude rights, burdens, reservations and wayleaves, including rights of access and rights of way whether contained in the Title Deeds or informally constituted and whether referred to in the General Remarks and Stipulations or not. The Purchaser(s) will be held to have satisfied themselves as to the nature of such servitude rights and others.

Planning: (Ref: 21/1148/DPA) and (Ref: 21/1518/FUL)

Services: Oakfield is not currently connected to any services. There is planning consent for the installation of a soakaway. Interested parties should make their own enquiries.

Sporting and Mineral Rights: Mines and mineral rights are included in so far as they are owned

Viewings: Strictly by appointment through the sole selling agents, C&D Rural. Tel 01228 792299.

Offers: Offers should be submitted in Scottish Legal Form to the selling agents. The owner reserves the right to sell without imposing a closing date and will not be bound to accept the highest, or indeed any, offer. All genuinely interested parties are advised to instruct their solicitor to note their interest with the Selling Agents immediately after inspection.

Money Laundering Obligations: In accordance with the Money Laundering Regulations 2017 the selling agents are required to verify the identity of the purchaser at the time an offer is accepted. All offers to purchase a property on a cash basis or subject to mortgage require evidence of source of funds.

Local Authority: Dumfries & Galloway Council, English Street, Dumfries, DG1 2DE. Tel.: 03033 333000.

Website and Social Media: Further details of this property as well as all others offered by C&D Rural are available to view on our website www.cdrural.co.uk. For updates and the latest properties like us on facebook.com/cdrural and Instagram on @cdrural.

Referrals: C&D Rural work with preferred providers for the delivery of certain services necessary for a house sale or purchase. Our providers price their products competitively, however you are under no obligation to use their services and may wish to compare them against other providers. Should you choose to utilise them C&D Rural will receive a referral fee: Fisher Financial Associates– arrangement of mortgage & other products/insurances; C&D Rural will receive a referral fee of £50 per mortgage referral. Figures quoted are inclusive of VAT.

Read moreless
Tenure: Freehold
Postcode: DG2 8ND

Utilities, Rights & Restrictions

Utility Supply

Electric Contact us
Water Contact us
Heating Contact us
Broadband Contact us
Sewerage Contact us

Rights & Restrictions

Private rights of way No
Public rights of way No
Listed property No
Restrictions No

Risks

Flooded in last 5 years No
Flood defenses No
Source of flood N/A

Get in touch

Call us Arrange a viewing
Home report Download
Download home report.
 

Share Oakfield, Dalskairth

This website uses cookies
This site uses cookies to enhance your browsing experience. We use necessary cookies to make sure that our website works. We’d also like to set analytics cookies that help us make improvements by measuring how you use the site. By clicking “Allow All”, you agree to the storing of cookies on your device to enhance site navigation, analyse site usage, and assist in our marketing efforts.
These cookies are required for basic functionalities such as accessing secure areas of the website, remembering previous actions and facilitating the proper display of the website. Necessary cookies are often exempt from requiring user consent as they do not collect personal data and are crucial for the website to perform its core functions.
A “preferences” cookie is used to remember user preferences and settings on a website. These cookies enhance the user experience by allowing the website to remember choices such as language preferences, font size, layout customization, and other similar settings. Preference cookies are not strictly necessary for the basic functioning of the website but contribute to a more personalised and convenient browsing experience for users.
A “statistics” cookie typically refers to cookies that are used to collect anonymous data about how visitors interact with a website. These cookies help website owners understand how users navigate their site, which pages are most frequently visited, how long users spend on each page, and similar metrics. The data collected by statistics cookies is aggregated and anonymized, meaning it does not contain personally identifiable information (PII).
Marketing cookies are used to track user behaviour across websites, allowing advertisers to deliver targeted advertisements based on the user’s interests and preferences. These cookies collect data such as browsing history and interactions with ads to create user profiles. While essential for effective online advertising, obtaining user consent is crucial to comply with privacy regulations.