Request a Valuation
Request a Valuation
 
View all images (14)
Brochure
Virtual Tour
Floorplans
Location
Share
Home - Find Your Property - Caravan Bieldwood Croft, Bush Moss
Under Offer
 

Bieldwood Croft, Gatehouse of Fleet, DG7

Offers Over

£130,000

Bedrooms
4
Property Type
Land (Residential)

Features

  • Building Plot in a peaceful location
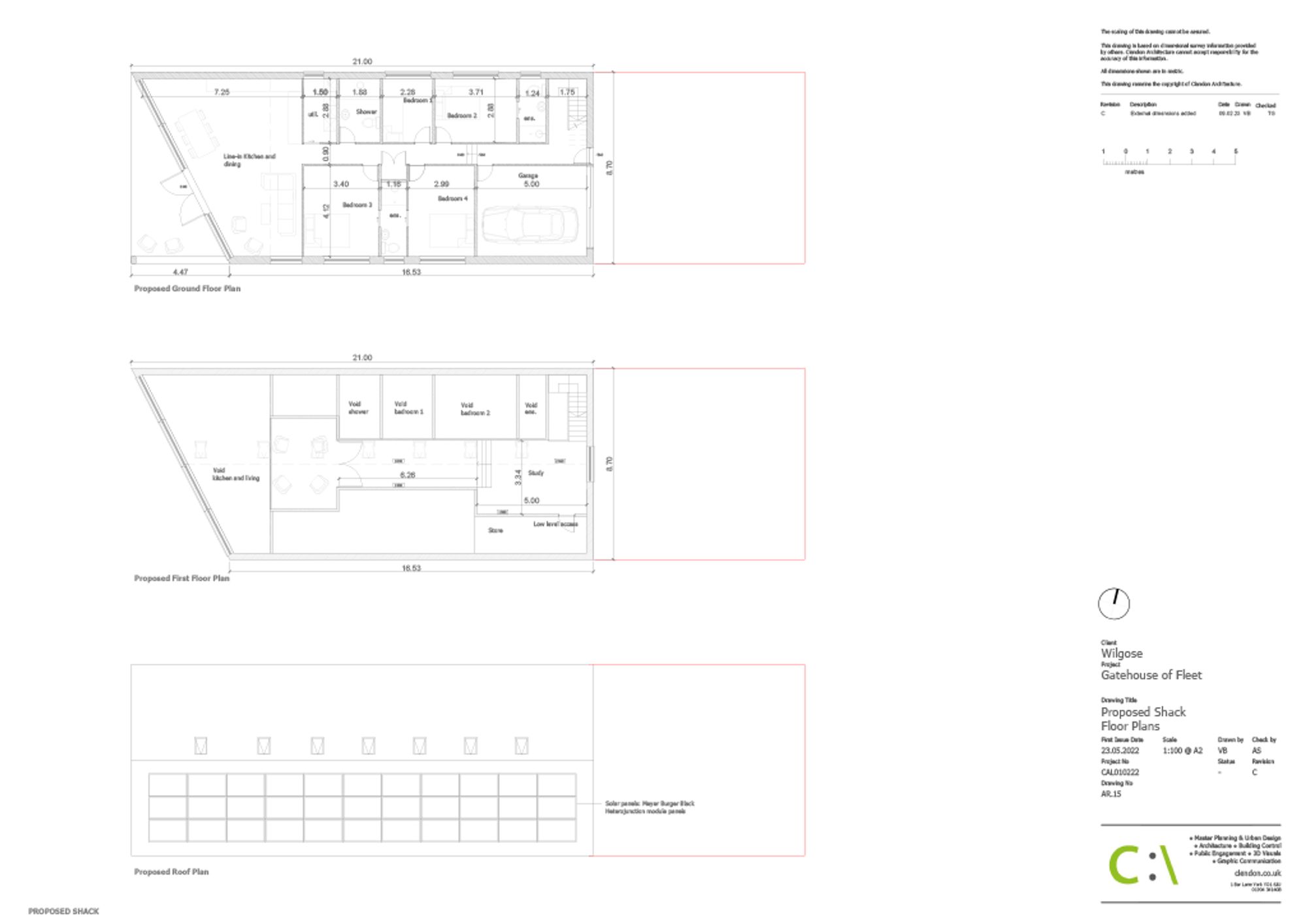
  • Full Planning Consent for a 4 bedroom house
  • Dumfries & Galloway Council Planning Reference 23/0371/FUL
  • Open views of surrounding countryside
  • Static caravan and storage buildings on site available by negotiation
  • Mains water and electricity connected

Full Details

An excellent opportunity to acquire a building plot with full planning permission for a stunning four bedroom detached house with extensive grounds. The site benefits from open views and is situated within driving distance of local amenities. The total site extends to approximately 0.88 acres, and is approached via a shared private access.

This is a rare opportunity to create a beautiful home in a unique and highly sought after location within Dumfries and Galloway.

Planning Reference: 23/0371/FUL

The proposed property granted full planning consent by Dumfries and Galloway Council briefly comprises of, on the ground floor, a kitchen with dining and sitting areas, a utility room, four bedrooms (two with en-suite shower rooms), a family shower room and integral single garage. The first floor comprises of a mezzanine with study area, sitting room and storage.

Approved drawings are included in these sale particulars showing elevations and floorplans. The proposed construction is for a steel framed building with black timber clad walls, black aluminium windows, doors and rainwater goods. The roof is proposed to be clad with black agricultural corrugated sheeting with a solar array of 33 panels located on the front roof pitch of the property. Mains water and electricity are already connected to the site and a septic tank with soakaway is to be installed as part of the development.

The site has a static caravan and storage buildings which are available by negotiation. This offers excellent accommodation whilst the building work is going on and secure buildings to store tools and equipment.

Location Summary

Gatehouse of Fleet is an attractive and historic conservation village situated within the picturesque Fleet Valley. Known for its characterful stone buildings and strong community atmosphere, the village offers a peaceful rural setting while still providing a range of everyday amenities. Local facilities include a selection of independent shops, cafés, a hotel, primary schooling, and medical services. The area is particularly popular with outdoor enthusiasts, with immediate access to scenic walking and cycling routes, including those within the Galloway Forest Park, the UK’s first Dark Sky Park. The nearby coastline at Carrick Shore and the wider Solway Firth offers attractive beaches and wildlife-rich environments. The historic Cardoness Castle provides a notable local landmark, further enhancing the area’s heritage appeal.

Gatehouse of Fleet lies approximately 10 miles from Kirkcudbright, known as the region’s “Artists’ Town”, and around 45 miles from Dumfries, offering a wider range of services, retail, and transport links. The A75 provides convenient access across southwest Scotland and connections to the ferry ports at Cairnryan for travel to Northern Ireland.

What 3 words

///lipstick.adapt.little

General Remarks & Stipulations

Tenure and Possession: The Heritable (Scottish equivalent of Freehold) title is offered for sale with vacant possession upon completion.

Matters of Title: The property is sold subject to all existing servitude rights, burdens, reservations and wayleaves, including rights of access and rights of way whether contained in the Title Deeds or informally constituted and whether referred to in the General Remarks and Stipulations or not. The Purchaser(s) will be held to have satisfied themselves as to the nature of such servitude rights and others. Access is via a shared access road with shared repairing liabilities.

Viewings: Strictly by appointment through the sole selling agents, C&D Rural. Tel 01228 792299.

Offers: Offers should be submitted in Scottish Legal Form to the selling agents. The owner reserves the right to sell without imposing a closing date and will not be bound to accept the highest, or indeed any, offer. All genuinely interested parties are advised to instruct their solicitor to note their interest with the Selling Agents immediately after inspection.

Money Laundering Obligations: We are required by law to carry out Anti Money Laundering Checks prior to issuing a memorandum of sale. We use an external agency to conduct these checks. Once an offer has been agreed, Coadjute will contact you to complete the checks electronically. A fee of £45 + VAT per person will apply and will be processed by Coadjute. If you have any queries please contact the office.

Read moreless
Tenure: Freehold
Postcode: DG7 2DH

Utilities, Rights & Restrictions

Utility Supply

Electric National Grid
Water Mains
Heating Contact us
Broadband Contact us
Sewerage Septic Tank

Rights & Restrictions

Private rights of way No
Public rights of way No
Listed property No
Restrictions No

Risks

Flooded in last 5 years No
Flood defenses No
Source of flood N/A

Get in touch

Call us Arrange a viewing
Home report Download
Download home report.
 

Share Caravan Bieldwood Croft, Bush Moss

This website uses cookies
This site uses cookies to enhance your browsing experience. We use necessary cookies to make sure that our website works. We’d also like to set analytics cookies that help us make improvements by measuring how you use the site. By clicking “Allow All”, you agree to the storing of cookies on your device to enhance site navigation, analyse site usage, and assist in our marketing efforts.
These cookies are required for basic functionalities such as accessing secure areas of the website, remembering previous actions and facilitating the proper display of the website. Necessary cookies are often exempt from requiring user consent as they do not collect personal data and are crucial for the website to perform its core functions.
A “preferences” cookie is used to remember user preferences and settings on a website. These cookies enhance the user experience by allowing the website to remember choices such as language preferences, font size, layout customization, and other similar settings. Preference cookies are not strictly necessary for the basic functioning of the website but contribute to a more personalised and convenient browsing experience for users.
A “statistics” cookie typically refers to cookies that are used to collect anonymous data about how visitors interact with a website. These cookies help website owners understand how users navigate their site, which pages are most frequently visited, how long users spend on each page, and similar metrics. The data collected by statistics cookies is aggregated and anonymized, meaning it does not contain personally identifiable information (PII).
Marketing cookies are used to track user behaviour across websites, allowing advertisers to deliver targeted advertisements based on the user’s interests and preferences. These cookies collect data such as browsing history and interactions with ads to create user profiles. While essential for effective online advertising, obtaining user consent is crucial to comply with privacy regulations.