Request a Valuation
Request a Valuation
 
View all images (41)
Brochure
Home Report
Virtual Tour
Floorplans
Share
Home - Find Your Property - Symington Mill Farm Biggar Road, Symington
Under Offer
 

Symington Mill Farm, Symington, Biggar, ML12

Offers Over

£395,000

Bedrooms
4
Reception Rooms
2
Bathrooms
1
Property Type
Farm House
Property Style
Detached

Features

  • Traditional farmhouse with accommodation over two floors
  • Flexible living space including two reception rooms
  • Three bedrooms on the first floor with plumbing for installation of family bathroom
  • Original period features
  • Former milking parlour, threshing mill, hayshed, stables and stone outbuildings
  • Excellent development potential subject to planning consents
  • Requires modernisation but potential to become a wonderful family home
  • Oil central heating
  • Land extending to 1.26 acres

Full Details

VIEWING DAY - 18TH APRIL 2026 - VIEWINGS BY APPOINTMENT ONLY.

A wonderful opportunity to purchase a traditional, detached Victorian farmhouse set within 1.26 acres of land. Symington Mill Farm, once part of a thriving dairy farm and owned by the current owners for over a Century, is now being offered for sale by private treaty. The farmhouse is situated on the outskirts of Symington, a rural village only a short distance from the bustling market town of Biggar, South Lanarkshire. Complete with a range of traditional stone buildings including a former threshing mill and milking parlour, this property offers a unique opportunity for development potential.

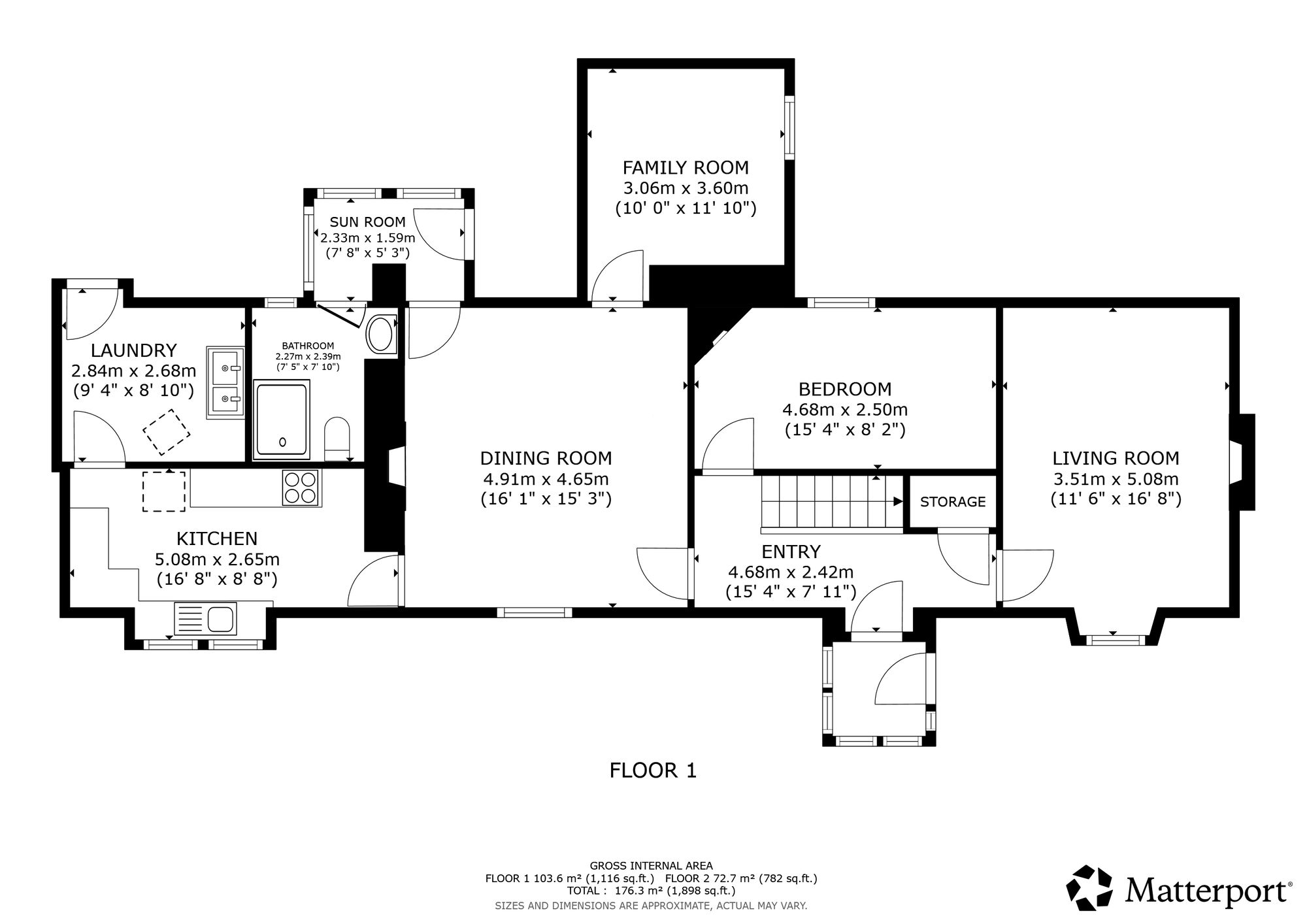
The Accommodation

The main entrance to the property is via a spacious and bright front porch which opens into the entrance hallway. The hallway provides access to the living room, dining room, office/study/bedroom and a stairwell which leads to the first floor. The living room features an original fireplace with tiled hearth, stunning cornice, high ceilings and large double glazed fronted window. Continuing down the hallway there is a room at the rear of the property at the bottom of the stairs, previously used as a ground floor bedroom this would also be suitable for other purposes.

The dining room is situated in the centre of the house and connects the kitchen and rear porch. Also featuring an original working fire, the dining room is perfect for enjoying dinner as a family. The kitchen is fitted with a range of wall and base units, complete with a stainless steel drainer sink. At the end of the kitchen you will find a washhouse/utility room, with two deep Belfast sinks and plumbing and electricity for white goods. There is an external door leading to the rear yard.

Off the dining room there is an additional room downstairs which could be used as another bedroom or private study. There is a rear porch and downstairs wet room which was upgraded about 5 years ago. The wet room is complete with a wall-mounted electric shower, WC and pedestal sink.

The second floor comprises of three good sized bedrooms. The first and second bedroom occupy both ends of the hall, similar in size and both featuring original fireplaces, coombed ceilings and windows to the front. A split landing gives access to the bedroom at the rear. There is an open space between the landing and rear bedroom and we have been advised plumbing has been installed under the floorboards for creating a family bathroom upstairs.

Outside

Once part of a productive dairy farm, Symington Mill Farm now comprises of a mixture of traditional outbuildings which lend themselves to excellent development potential subject to the necessary planning consents. Whether you’re considering utilising the buildings for personal use or demolishing to create more usable land, the opportunities are endless. The property sits in around 1.26 acres of grounds, with garden to the front, rear and side. A horseshoe driveway provides access from two separate sections from the main road and would also a provide a separate access if the mill was to be developed into residential accommodation. There is a car port with slate roof attached to the side of the main house. To the side of the property there is a large hay shed with four stables and roadside access. Access can also be gained to the paddock with additional gated access at the rear of the house. A hay shed, former blacksmiths shop and henhouse completes the grounds.

All in all, the property is rich in key period features throughout and although it does require some modernisation, has excellent potential to be a unique family home, only 30 minutes from Edinburgh.

Location Summary

The nearby bustling market town of Biggar provides a variety of general and speciality shops for most daily amenities, business and professional facilities, cafes and restaurants, museum and is host to Scotland's only Puppet Theatre. The town has an annual arts festival, the Biggar Little Festival a family-friendly celebration of music, dance, crafts, literature, and drama. A further range of amenities can be found in the nearby county towns of Lanark (14 miles) and Peebles (28 miles). For education, there is a local primary with a secondary schooling at the well-regarded Biggar High School. There are a number of private schools in Edinburgh. Symington Mill Farm is well placed for outdoor pursuits offering local access to the iconic Tinto hills, mountain biking, canoeing and a host of other activities.

What 3 Words

///dices.radiated.ironclad

General Remarks & Stipulations

Matters of Title: The property is sold subject to all existing servitude rights, burdens, reservations and wayleaves, including rights of access and rights of way whether contained in the Title Deeds or informally constituted and whether referred to in the General Remarks and Stipulations or not. The Purchaser(s) will be held to have satisfied themselves as to the nature of such servitude rights and others.

Fixtures and Fittings: All standard fixtures and fittings are to be included in the sale.

Septic tank: The cesspit is registered with SEPA and is located at the rear of the property.

Viewings: Strictly by appointment through the sole selling agents, C&D Rural. Tel. 01228 792299.

Offers: Offers should be submitted in Scottish Legal Form to the selling agents. The owner reserves the right to sell without imposing a closing date and will not be bound to accept the highest, or indeed any, offer. All genuinely interested parties are advised to instruct their solicitor to note their interest with the Selling Agents immediately after inspection.

Money Laundering Obligations: We are required by law to carry out Anti Money Laundering Checks prior to issuing a memorandum of sale. We use an external agency to conduct these checks. Once an offer has been agreed, Coadjute will contact you to complete the checks electronically. A fee of £45 + VAT per person will apply and will be processed by Coadjute. If you have any queries please contact the office.

Website and Social Media: Further details of this property as well as all others offered by C&D Rural are available to view on our website www.cdrural.co.uk. For updates and the latest properties like us on facebook.com/cdrural and Instagram on @cdrural.

Referrals: C&D Rural work with preferred providers for the delivery of certain services necessary for a house sale or purchase. Our providers price their products competitively, however you are under no obligation to use their services and may wish to compare them against other providers. Should you choose to utilise them C&D Rural will receive a referral fee: Fisher Financial Associates– arrangement of mortgage & other products/insurances; C&D Rural will receive a referral fee of £50 per mortgage referral. Figures quoted are inclusive of VAT.

Read moreless
Tenure: Freehold
Council Tax Band: D
Postcode: ML12 6LW
EPC Rating: View

Utilities, Rights & Restrictions

Utility Supply

Electric National Grid
Water Mains
Heating Oil, Wood Burner
Broadband FTTP (fibre to the premises)
Sewerage Cesspit

Rights & Restrictions

Private rights of way No
Public rights of way No
Listed property No
Restrictions No

Risks

Flooded in last 5 years No
Flood defenses No
Source of flood N/A

Get in touch

Call us Arrange a viewing
Home report Download
Download home report.
 

Share Symington Mill Farm Biggar Road, Symington

This website uses cookies
This site uses cookies to enhance your browsing experience. We use necessary cookies to make sure that our website works. We’d also like to set analytics cookies that help us make improvements by measuring how you use the site. By clicking “Allow All”, you agree to the storing of cookies on your device to enhance site navigation, analyse site usage, and assist in our marketing efforts.
These cookies are required for basic functionalities such as accessing secure areas of the website, remembering previous actions and facilitating the proper display of the website. Necessary cookies are often exempt from requiring user consent as they do not collect personal data and are crucial for the website to perform its core functions.
A “preferences” cookie is used to remember user preferences and settings on a website. These cookies enhance the user experience by allowing the website to remember choices such as language preferences, font size, layout customization, and other similar settings. Preference cookies are not strictly necessary for the basic functioning of the website but contribute to a more personalised and convenient browsing experience for users.
A “statistics” cookie typically refers to cookies that are used to collect anonymous data about how visitors interact with a website. These cookies help website owners understand how users navigate their site, which pages are most frequently visited, how long users spend on each page, and similar metrics. The data collected by statistics cookies is aggregated and anonymized, meaning it does not contain personally identifiable information (PII).
Marketing cookies are used to track user behaviour across websites, allowing advertisers to deliver targeted advertisements based on the user’s interests and preferences. These cookies collect data such as browsing history and interactions with ads to create user profiles. While essential for effective online advertising, obtaining user consent is crucial to comply with privacy regulations.