Request a Valuation
Request a Valuation
 
View all images (23)
Brochure
Virtual Tour
Property Video
Floorplans
Share
Home - Find Your Property - 31 Garrett Way, Carlisle
Sold STC
 

31 Garrett Way, Carlisle, CA3

Guide Price

£285,000

Bedrooms
4
Reception Rooms
1
Bathrooms
2
Property Type
House
Property Style
Semi Detached

Features

  • Spacious, three storey semi-detached home
  • Situated on the desirable 'Aspen Grange' development
  • Four double bedrooms including master en-suite
  • Naturally bright living room with bi-fold doors to garden
  • Modern kitchen with quartz stone worktops and integrated appliances
  • Rear landscaped garden
  • Double driveway
  • Excellent transport links
  • Efficient energy rating

Full Details

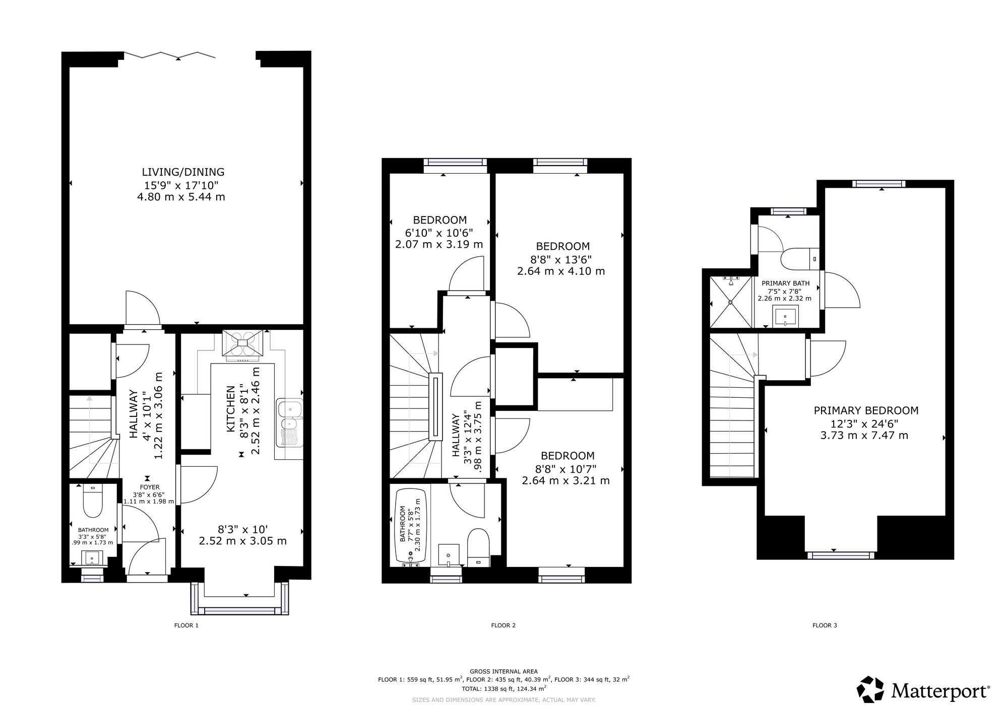
31 Garrett Way is the perfect opportunity to acquire a spacious and modern four bedroom family home, in turn-key condition, situated on the sought after ‘Aspen Grange’ development to the North of Carlisle. Constructed by the well renowned builders ‘Story Homes’, the immaculate 'Emmerson' style home is laid over three floors featuring a stunning modern kitchen with upgraded specification, immersive living room with bi-fold doors to the landscaped rear garden, four bedrooms including second floor master with en-suite, family bathroom and a cloakroom WC, and driveway parking for two cars.

The Accommodation

The front door welcomes a spacious and welcoming hallway fitted with herringbone LVT flooring which naturally flows through the entire ground floor. At the entrance there is a useful cloakroom on the ground floor with WC and hand wash basin as well as under the stairs storage. The kitchen has been upgraded from the standard specification, benefits from a breakfast nook adjacent to the bay window and includes modern, grey kitchen units fitted with Silestone worktops and integrated appliances to include AEG double electric oven, induction hob with extractor fan over, washer/dryer, and fridge freezer.

The lounge is to the rear of the property and benefits from ample natural light through the Velux windows and bi-fold doors to the terrace; bathed in soft, natural light streaming through expansive windows, the lounge offers an immediate sense of openness and airiness. The flooring complements the contemporary finish and open plan space which lends itself to another quality dining space, and there is still adequate space for sofas, sideboards and entertainment suites.

On the first floor, there are two double bedrooms and a large single bedroom, with the front bedroom complete with sleek fitted wardrobes, and a three piece family bathroom completing the first floor. The second floor boasts a dual aspect master bedroom with en-suite shower room. There is ample space for freestanding wardrobes or scope to installed fitted wardrobes.

The beautiful landscaped garden at the rear of the property is the perfect size for keeping it maintained, laid partially with lawn and an extended paved patio off the living room, creating the perfect connection for outdoor dining in the Summer. There is gated access to the garden from the side of the property. The property is offered with vacant possession and is in turn-key condition. The property also benefits from six years of NHBC warranty remaining.

31 Garrett Way is a fabulous family home, in a sought after area of Carlisle and therefore viewings are high recommended to appreciate everything this property has to offer.

Situation

Garrett Way enjoys a pleasant residential setting, in the attractive and ever-popular Story Homes Aspen Grange Estate, located on the outskirts of Kingstown, Carlisle. There is a range of local amenities nearby including M&S Food hall, Asda, Morrisons, Next Home and Home Bargains stores all being within walking distance. The property is perfectly positioned for those looking to reside outside of central Carlisle, but still have ease of access to the city centre. Nearby schools include Kingmoor Infant & Junior School with secondary schools being closer to the city or Brampton. There is very easy access to Carlisle Centre from our property, along with excellent road links to the M6 motorway and the A7.

What 3 Words

///gates.idealist.mats

General Remarks and Stipulations

Tenure and Possession: The Freehold title is offered for sale with vacant possession upon completion.

Matters of Title: The property is sold subject to all existing easements, burdens, reservations and wayleaves, including rights of access and rights of way whether contained in the Title Deeds or informally constituted and whether referred to in the General Remarks and Stipulations or not. The Purchaser(s) will be held to have satisfied themselves as to the nature of such matters.

Fixtures and Fittings: All standard fixtures and fittings are to be included in the sale.

EPC Rating: B

Services: 31 Garrett Way is served by mains water, mains electricity, mains gas and mains sewerage.

Broadband: Fibre to the premises and good mobile coverage available.

Viewings: Strictly by appointment through the sole selling agents, C&D Rural. Tel 01228 792299.

Offers: Offers should be submitted to the selling agents. The owner reserves the right to sell without imposing a closing date and will not be bound to accept the highest, or indeed any, offer. All genuinely interested parties are advised to note their interest with the selling agents.

Money Laundering Obligations: In accordance with the Money Laundering Regulations 2017 the selling agents are required to verify the identity of the purchaser at the time an offer is accepted.

Local Authority: Cumberland Council. The house is in Council Tax Band C.

Website and Social Media: Further details of this property as well as all others offered by C&D Rural are available to view on our website www.cdrural.co.uk.For updates and the latest properties like us on facebook.com/cdrural and Instagram on @cdrural.

Referrals: C&D Rural work with preferred providers for the delivery of certain services necessary for a house sale or purchase. Our providers price their products competitively, however you are under no obligation to use their services and may wish to compare them against other providers. Should you choose to utilise them C&D Rural will receive a referral fee: PIA Financial Solutions – arrangement of mortgage & other products/insurances; C&D Rural will receive a referral fee of £50 per mortgage referral. Figures quoted are inclusive of VAT.

Read moreless
Tenure: Freehold
Council Tax Band: C
Postcode: CA3 0FT
EPC Rating: View

Utilities, Rights & Restrictions

Utility Supply

Electric National Grid
Water Mains
Heating Gas Central
Broadband FTTP (fibre to the premises)
Sewerage Mains

Rights & Restrictions

Private rights of way No
Public rights of way No
Listed property No
Restrictions No

Risks

Flooded in last 5 years No
Flood defenses No
Source of flood N/A

Get in touch

Call us Arrange a viewing
Home report Download
Download home report.
 

Share 31 Garrett Way, Carlisle

This website uses cookies
This site uses cookies to enhance your browsing experience. We use necessary cookies to make sure that our website works. We’d also like to set analytics cookies that help us make improvements by measuring how you use the site. By clicking “Allow All”, you agree to the storing of cookies on your device to enhance site navigation, analyse site usage, and assist in our marketing efforts.
These cookies are required for basic functionalities such as accessing secure areas of the website, remembering previous actions and facilitating the proper display of the website. Necessary cookies are often exempt from requiring user consent as they do not collect personal data and are crucial for the website to perform its core functions.
A “preferences” cookie is used to remember user preferences and settings on a website. These cookies enhance the user experience by allowing the website to remember choices such as language preferences, font size, layout customization, and other similar settings. Preference cookies are not strictly necessary for the basic functioning of the website but contribute to a more personalised and convenient browsing experience for users.
A “statistics” cookie typically refers to cookies that are used to collect anonymous data about how visitors interact with a website. These cookies help website owners understand how users navigate their site, which pages are most frequently visited, how long users spend on each page, and similar metrics. The data collected by statistics cookies is aggregated and anonymized, meaning it does not contain personally identifiable information (PII).
Marketing cookies are used to track user behaviour across websites, allowing advertisers to deliver targeted advertisements based on the user’s interests and preferences. These cookies collect data such as browsing history and interactions with ads to create user profiles. While essential for effective online advertising, obtaining user consent is crucial to comply with privacy regulations.